Italiano
467.000 €

NUOVO QUADRILOCALE CON DOPPI SERVIZI E TERRAZZO

4 o più locali in vendita • Cesano Maderno - via Rossini, 16
RESIDENZA LE TERRAZZE

Sta nascendo a Cesano Maderno una residenza esclusiva, a due passi dal centro e da tutti i servizi principali: stazione ferroviaria, scuole, supermercati e dal Parco Collodi.

Un progetto innovativo ed elegante, composto da soli sei appartamenti e pensato per chi cerca design contemporaneo, comfort abitativo e massima efficienza energetica: con tapparelle elettriche, videocitofono, riscaldamento autonomo a pavimento, ventilazione meccanica controllata (VMC) per il ricircolo continuo dell’aria e predisposizione per antifurto e aria condizionata. Non manca TV satellitare e impianto fotovoltaico , per un condominio moderno, sostenibile e a basso impatto energetico.

Le unità abitative hanno tutte una tripla esposizione per garantire un’ottima luminosità agli ambienti e godono tutte di ampie terrazze progettate per offrire veri spazi di respiro e momenti di quiete, in totale riservatezza.
Ogni dettaglio è studiato per garantire un equilibrio perfetto tra estetica e funzionalità, con soluzioni abitative pensate per chi cerca comfort senza rinunciare allo stile.

Esclusive soluzioni abitative di tre e quattro locali con doppi servizi e attici, possibilità di personalizzazione interna grazie ad un capitolato di pregio.
Le metrature generose e la cura nella distribuzione degli ambienti interni assicurano un’abitabilità moderna comoda e funzionale.

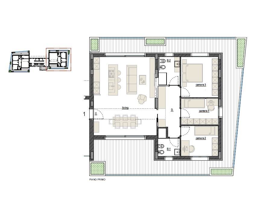
Proposta 1: Quadrilocale di mq.155 composto da ingresso, soggiorno con ampie vetrate scorrevoli con accesso sul terrazzo di mq.74 che circonda l'intero appartamento, cucina a vista sul soggiorno, tre ampie camere da letto e doppi servizi.

€ 467.000,00

Disponibilità box doppi.

Consegna estate 2026
Caratteristiche principali
Codice
V000840
Città
Cesano Maderno
Categoria
4 o più locali
Prezzo
467.000 €
Locali
4
Camere
3
Bagni
2
Mq
155
Terrazzi
1
mq Terrazzo
74
Piano
1
Classe energetica
A4
Stato Immobile
In Costruzione
Grado
Signorile
Posizione
Centro
Lati Liberi
3
Arredi
Non Arredato
Tipo Soggiorno
Soggiorno
Tipo Cucina
A Vista
Tipo Riscaldam.
Pompa di Calore
Tipo Impianto
Pavimento
Fonte Energetica
Elettrico
Infissi
Alluminio Doppio Vetro
Serramenti
Nuovo
Persiana
Tapparella Metallo
Pavim. Giorno
Personalizzato
Pavim. Notte
Personalizzato
Pavim. Cucina
Personalizzato
Pavim. Bagno
Personalizzato
Accesso Disabili
Nessuna Barriera

Accessori: Antifurto, Aria Condizionata, Ascensore, Cancello Elettrico, Doppi Vetri, Impianto Fotovoltaico, Impianto Satellitare, Passaggio Automobilistico, Passaggio Pedonale, Porta Blindata, Ripostiglio, Tapparelle Elettriche, Video Citofono

Mappa
via Rossini 16, Cesano Maderno (MB)
Video
Condividi su
Cookie preference