Italiano
380.000 €

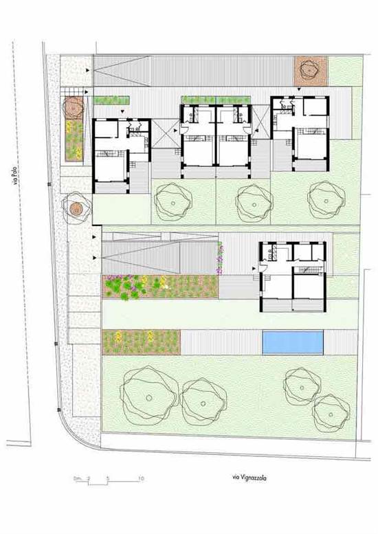
Nuova villa ad alto risparmio energetico

Villa Bifamiliare in vendita • Meda - via Marco Polo
Meda confine con Seveso, in posizione comoda con la super superstrada MI-MEDA, nuovo contesto residenziale di sole ville:

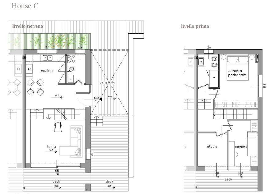
Proposta C
Porzione di bifamiliare libera su tre lati di mq. 107 con annesso portico e giardino privato di mq 102.
Internamente la soluzione si sviluppa su due livelli:
Piano terra: luminoso soggiorno con ampie vetrate, cucina separata e servizio
Piano primo: tre camere da letto con terrazzino e servizio
Oltre a taverna di mq. 37 al piano interrato direttamente collegata direttamente al box doppio.
€ 380.000,00
Disponibilità box doppio.
Consegna fine 2026
Caratteristiche principali
Codice
V000843
Città
Meda
Categoria
Villa Bifamiliare
Prezzo
380.000 €
Locali
4
Camere
3
Bagni
2
Mq
143
Box
2
Mq Giardino
102
Classe energetica
A4
Stato Immobile
In Costruzione
Grado
Signorile
Giardino
Privato
Tipo Soggiorno
Soggiorno
Tipo Cucina
A Vista
Riscaldamento
Autonomo
Tipo Riscaldam.
Pompa di Calore
Fonte Energetica
Elettrico
Pavim. Giorno
Personalizzato
Pavim. Notte
Personalizzato
Pavim. Cucina
Personalizzato
Pavim. Bagno
Personalizzato
Mappa
via Marco Polo , Meda (MB)
Video
Condividi su
Cookie preference