Italiano
460.000 €

Nuova villa singola ad alto risparmio energetico

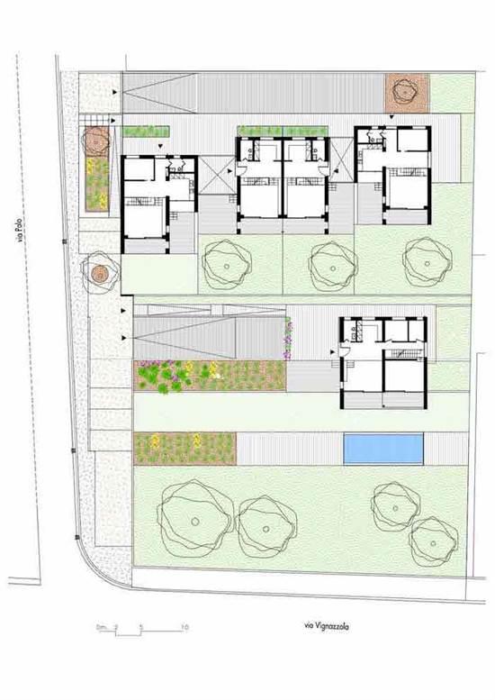
Villa in vendita • Meda - via Marco Polo
Meda confine con Seveso, in posizione comoda con la super superstrada MI-MEDA, nuovo contesto residenziale di sole ville:
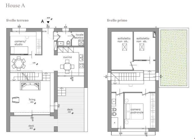
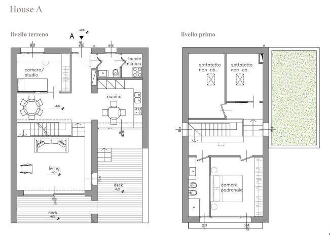
Proposta A
Villa singola di mq. 135 con annesso portico e giardino privato di mq 78
Internamente la soluzione si sviluppa su due livelli:
Piano terra: luminoso soggiorno con ampie vetrate, cucina abitabile, camera da letto e servizio
Piano primo: tre camere da letto con terrazzino e servizio
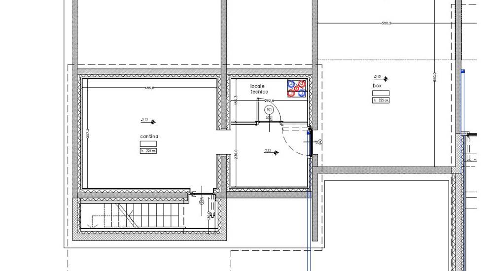
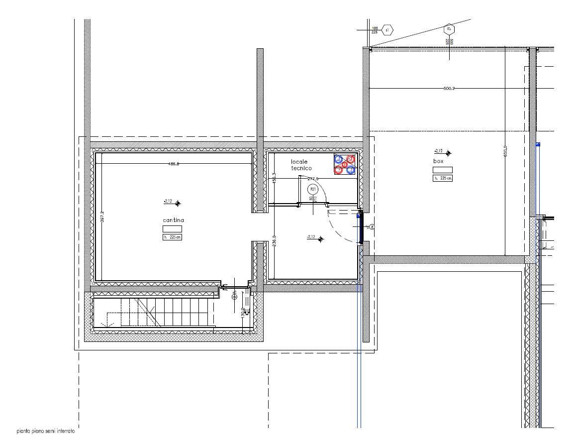
Oltre a taverna di mq. 78 al piano interrato direttamente collegata direttamente al box doppio.
€ 460.000,00
Disponibilità box doppio.
Consegna fine 2026
Caratteristiche principali
Codice
V000846
Città
Meda
Categoria
Villa
Prezzo
460.000 €
Locali
5
Camere
4
Bagni
2
Mq
190
Box
2
Classe energetica
A4
Stato Immobile
In Costruzione
Grado
Signorile
Giardino
Privato
Tipo Soggiorno
Soggiorno
Tipo Cucina
A Vista
Riscaldamento
Autonomo
Tipo Riscaldam.
Pompa di Calore
Fonte Energetica
Elettrico
Pavim. Giorno
Personalizzato
Pavim. Notte
Personalizzato
Pavim. Cucina
Personalizzato
Pavim. Bagno
Personalizzato
Mappa
via Marco Polo , Meda (MB)
Video
Condividi su
Cookie preference